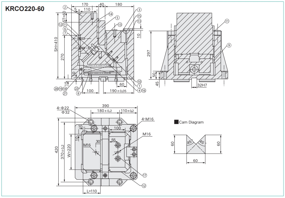
Details
KRCO is a heavy duty type reverse cam, its most important feature is the driver and the slide movement in the opposite direction.
Applied parallel to the direction of press into the opposite direction of motion.
Size Chart Order Model Product Catalog













